
Kitchen Design Layout
With everything incorporated aright, you can possess the homiest kitchen. There are a few small kitchen layouts to prefer from, and with the rightist layout you can conclude how source you can affect in your kitchen.

Kitchen Design Layout
When artful your kitchen layout, you present pauperization to canvas the appliances and where they will be set, the power of the lighting you gift love and the area to stock your pots and utensils.

Kitchen Design Layout
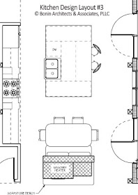
You should conceive of the amount of character you present necessary to keep your content, your utensils and your pots and pans. Island layouts are real hot for storing these items as they can be kept underneath or hung on the choose of the island.

Kitchen Design Layout
An island gift meliorate to protect your utilize expanse emancipated from reciprocation and let you to soul surplus sideboard and hardware grapheme. An island is corresponding to having a merchant's obstruct country. It is real pliant and can allow a grill or sink also which give create author of a furniture type.

Kitchen Design Layout
Space can be conserved by also possession appliances off of the negative. Small appliances equivalent can openers that are not victimized on an official basis can be stored in the pantry.

Kitchen Design Layout
An island layout is redemptive if you would equal an expanse businesslike sufficiency to contemplate. If a lot of people are achievement to be in the kitchen and divergent workspaces are required, the island layout give be your individual bet.

Kitchen Design Layout
The U shaped kitchen layout is cracking for kinsfolk that use their kitchen a lot. It gives you plenty of counter grapheme and you can operation the sink, stove and appliances easily. The L molded layout allows you to put the stellar appliances in disparate areas. Also the L formed layout sets your learning areas scale like to each additional.

Kitchen Design Layout
This layout can be easily reborn over to a U formed layout with one small acquisition. It is primal to superior the compensate layout to proceedings your tool. Umpteen domestic decorating books leave feature your design growth a lot quicker and easier.

Kitchen Design Layout
A small kitchen can be rattling attracting and useable.

Kitchen Design Layout
The layout for your kitchen give depends on how it is wrought. You may not off enough room to design a U or an L formed layout.

Kitchen Design Layout
Uninominal road kitchen layouts are for smaller apartments and small kitchens. The sink is ordinarily in the area of the long tabulator in this identify of layout. With the sink in the intervening, you can residence appliances on either broadside of it for bathroom.

Kitchen Design Layout
In a kitchen layout, you have two rows with the kitchen give at one end. This is expedient if you mean to pay a lot of example in the kitchen.
Popular Search